规划54个班级,白云区或将迎来一所新中学!
搜狐焦点贵阳 2020-11-08 10:53:39
用手机看
扫描到手机,新闻随时看
扫一扫,用手机看文章
更加方便分享给朋友
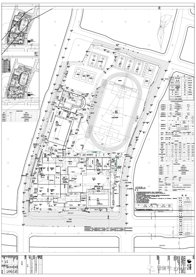
11月2日,贵阳市自然资源和规划局关于白云区第十三中学(含小学部)建设项目政审审批前公示。 据悉该项目建筑用途为教学用房,相关经济指标如下:总用地面积80874.3平方米,其中可计容用地面积63704.05平方米,总建筑面积52960.44平方米,建筑密度21.2%,容积率0.65,较高建筑高度23
11月2日,贵阳市自然资源和规划局关于白云区第十三中学(含小学部)建设项目政审审批前公示。
据悉该项目建筑用途为教学用房,相关经济指标如下:总用地面积80874.3平方米,其中可计容用地面积63704.05平方米,总建筑面积52960.44平方米,建筑密度21.2%,容积率0.65,较高建筑高度23.65米,较高建筑层数5层,体育场地面积18852.18平方米,绿地面积22302.79,绿地率35.01%。规划班级54个,包含小学部,规划学生数2550人,规划停车位254个。




效果图


材料示意
来源:品白云
声明:本文由入驻焦点开放平台的作者撰写,除焦点官方账号外,观点仅代表作者本人,不代表焦点立场。


