总建面88.9万方!金科花溪凤鸣地块项目规划亮相
扫描到手机,新闻随时看
扫一扫,用手机看文章
更加方便分享给朋友
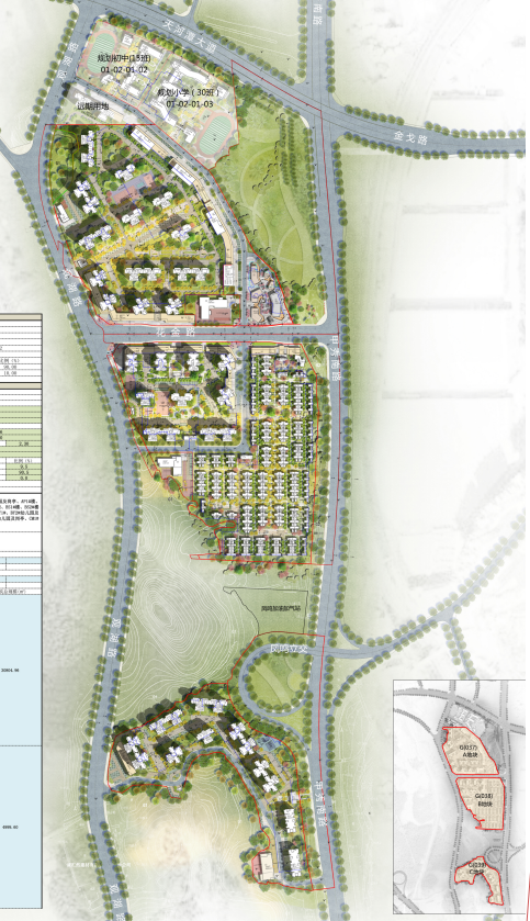
1月14日,贵阳市自然资源和规划局发布了金科·凤鸣G(20)037-039地块项目行政审批批前公示的公告。据文件显示,该项目本次申报类别为建设工程规划设计方案审查及《建设工程规划许可证》,申报单位为贵阳花溪金科房地产开发有限公司。

据规划方案显示,金科•凤鸣G(20)037-039地块规划总用地面积为442517平方米,其中可计容用地面积为287060平方米,用地性质为商住用地(居住90%、商业10%),绿地率为35.09%。
项目规划建筑规模为:总建筑面积889328.36平方米;其中,计容建筑面积660233.86平方米,不计容建筑面积229094.5平方米。项目容积率为2.3;建筑密度21.96%;规划建筑总栋数110栋,较高建筑高度为78.3米,总户数共5734户,设计停车位 6604个;公建配套建筑包含幼儿园、农贸市场和多功能活动场地等。此外,根据凤鸣地块规划细则和地块出让条件,G(20)037-039地块竞得人需要在周边的花溪01-02-01-02 地块建设 15 班中学(初中),用地面积 24.75 亩;花溪01-02-01-03 地块建设 30 班小学,用地面积 36.45 亩,建设完成后无偿移交给花溪区政府,并且凤鸣地块还规划有加油加气站用地,地块用地面积8700平方米。

总平面图
声明:本文由入驻焦点开放平台的作者撰写,除焦点官方账号外,观点仅代表作者本人,不代表焦点立场。


