观山湖中心现1.8低容宅地,花果园商业项目拟引资100亿元,观山湖三个新项目接近面世(贵阳楼市周报10.13-10.17)
扫描到手机,新闻随时看
扫一扫,用手机看文章
更加方便分享给朋友
来源:樾筑
贵阳楼市周成交榜
据贵州省房协统计数据,2025年10月10日至2025年10月16日,贵阳主城六区住宅网签金额榜单中:

建发金融北城成为周销冠;洋浦頭号山排名第二;天瀑南明府位居第三。
其后分别是万科云翠隐秀、万科都会印象、中铁阅山湖、美的璟悦风华、远洋观山天铂、龙湖天曜和盼盼金檀郡等项目。
果然,在一些迟滞之后,上一周的贵阳楼市数据,出现了一个较大的反弹,按照逻辑,这其实是黄金周优异市场表现的一个延续。
预计接下来的一周,贵阳主城市场的住宅周成交量,依然会处于近期高位。
当然了,冲高之后,市场也有可能缓一阵子,也许在10月份的第三或第四周,数据就不会那么好看了。
不过整个10月份贵阳楼市要维稳,看起来并没有什么困难。
接下来还是继续按照惯例,聊聊周榜里那些值得关注的项目。
建发金融北城,也是在销冠的位置久违了,虽然仍是白云区一哥,但面临的压力不可谓不大,接下来就看天瀑会怎么出牌了。
洋浦頭号山,终于在签了几百套房后,势头稍缓了一些,但依然是锐不可当,不知道在10月份,有没有继续冲击月销冠的可能。
万科云翠隐秀、都会印象、万科理想城,这仨项目都在国庆期间卖得不错,也助力万科成为了黄金周贵阳最畅销的品牌;
价格上这俩项目确实下调了一些,但早在9月中旬就已经做了调整,目前来看,三个项目在近期发力,还是和项目本身素质不错有关。
美的璟悦风华,真的就是看到必夸,作为一个近郊项目,能频频上榜确实不可思议,美的国宾府同理,真是夸到有点疲劳了。
盼盼金檀郡,这个项目在交付前后一直表现不错,目前来看品牌已经算竖起来了,就看项目二期洋房怎么去做了,如果做得到位,那么是有机会成为爆款的。
投控花漾云岩、龙湖观萃,这两个三个项目放在一起来说;
其实在我看来,三马的楼市潜力不止于此,然而受到一些现实因素的影响,这两个项目虽然都常常入榜,但是与我个人预期还是有点点距离,按理说应该再上几位才对。
乾麟龙观宸,这个项目确实是稳得起,流速虽然不快,但不疾不徐,再加上货又不多,估计不会卖得太久。
总价8780万元,本土企业获取观清路旁两宗宅地
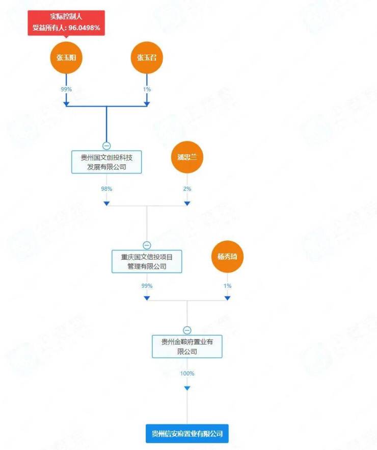
10月13日,据贵阳市公共资源交易中心公告,位于清镇市青龙山街道办事处凉水井村境内的52018120250021和52018120250022号住宅用地,被贵州信安府置业有限公司以8780万元总价获取,计算成交楼面价分别约为1333元/平米和1327元/平米。
根据企查查,贵州信安府置业有限公司由贵阳本土企业——贵州国文创投科技发展有限公司控股,后者又由自然人张玉阳控股。
从企业关系上看,本次拿地的企业,与其他在贵阳开发建设项目的房企并无公开关联。
但亦有业内流言称,该企业与地块周边项目存在关联,具体情况如何,还要等地块项目面世才能知晓了。
据悉,52018120250021和52018120250022号住宅用地,实际出让面积分别为15180平米和11217平米;
规划指标均为容积率大于1.0小于等于2.5,建筑密度小于等于22%,绿地率大于等于35%,建筑限高80米。
拿地条件方面,两宗地需按要求统一规划,并在地块内配建6班幼儿园一所,在相邻地块内配建30班小学一所,且不需再缴纳初、高中教育配套费。
区位条件方面,两宗地位于清镇东观清板块新兴住区内,大致可以参考周边广大城、达丰上官华府等项目;
周边相对比较成熟,有杉杉奥莱、四季贵州景区、吾悦广场等作为核心配套,生活便利性不错,同时与观山湖区联系亦相对紧密,可以承接一些外溢价值。
容积率低至1.8,世纪城蓝天驾校地块调规
10月14日,贵阳市自然资源和规划局公示了观山组团世纪城单元GS-09-01-37等地块规划调整方案,此前官方推介的世纪城蓝天驾校地块迎来调规。
据悉,规划调整后,GS-09-01-37(调)地块规划用地面积13.75万方,容积率1.8,建筑密度30%,绿地率30%,兼容商业建筑3%,需配建一所9班幼儿园;
GS-09-01-38(调)地块规划用地面积9.54万方,容积率2.2,建筑密度22%,绿地率35%,兼容商业建筑3%,同样要求配建一所9班幼儿园。
据了解,本次公示的调规地块,即为此前观山湖区推介的观储-2025GS-01地块,也就是我们常说的世纪城蓝天驾校地块。
该地块位于世纪城板块,观山湖区核心,临靠有望改扩建的华东学区,可享世纪金源商圈、万象汇商圈、金阳医院、观山湖公园等城市核心资源,区位优势非常明显,是今年推介土地中区位最好的之一。
与此同时,地块在规划指标方面,也具备相对不错的优势,容积率明显低于周边项目,可打造纯洋房、纯小高等差异化改善项目,后续竞争力也更强。
按照以往经验,地块调规公示之后,往往意味着距离挂牌入市已然不远。
由于地块区位和规划指标都足够好,因此当前关注地块的房企也不少。
不过,又由于地块旁有望改扩建的华东学区,将由拿下观山东阳关大道地块的众恒负责建设,因此个人认为,比较有希望拿下蓝天驾校地块的,还是众恒。
官方明确贵阳非机动车道建设计划
日前,贵阳市交通委员会就贵阳非机动车道建设相关问题做出回复。
市交委表示,贵阳作为典型的山地城市,地形复杂坡多坡陡,早期非机动车出行需求相对较低。
尤其是老城区,多数道路都设置了公交专用道,且道路断面普遍较窄,暂不具备设置非机动车道的条件。
为改善非机动车出行环境,已在高新区、观山湖区、花溪大学城等部分区域建设了非机动车专用道。
但从现状来看,非机动车道仍存在分布零散、部分路段设置不连续等问题,尚未形成高效贯通的完整路网体系。
自2022年起,市公安交管局先后在双龙经济区永兴街、二福路,南明区花果园片区开展了非机动车道相关试点建设;
2024年12月25日,在金融城路口的北进口设置了非机动车道,目前运行情况良好。
2023年1月,市政府批复了《贵阳市综合交通体系规划(2021-2035年)》,规划建设互联互通非机动车道网络,串联重要休闲节点,满足市民休闲观光需求;
同时,选取观山湖区等区域作为非机动车道重点发展区域,规划两级非机动车道,覆盖医院、学校、公园等重要节点,满足市民通勤需求。
市交委目前已完成《观山湖区非机动车道专项规划》编制,对观山湖区非机动车道网络布局、过街设施、安全设施等方案进行了研究设计。
下一步,属地政府将综合考虑财政状况、地理条件、道路资源等实际情况科学研判,在新建、扩建道路时,将非机动车道纳入设计方案,从源头保障非机动车道的建设;
同时,在有条件实施非机动车道的现有道路上,逐步推进增设工作,循序渐进,争取早日实现非机动车道连网成片。
龙洞堡挂牌两宗宅地
10月16、17日,据贵阳市公共资源交易中心公告,位于双龙航空港经济区金戈路南侧、建设大道北侧、龙腾路与小碧西路之间的52010220250025和52010220250026号商住用地挂牌。

52010220250025

52010220250026
据悉,52010220250025和52010220250026号地块,实际出让面积分别为29228.65平米和39555.27平米,规划指标均为容积率大于1.0小于等于2.5,建筑密度小于等于22%,绿地率大于等于35%,建筑限高54米;
两宗地的起始总价分别为22184.55万元和30022.45万元,计算起始楼面价均约为3036元/平米。
区位条件方面,两宗地均位于龙洞堡边缘,周边配套、路网等,都需要时间完善,总体不算好。
去年双龙经济区的国企平台——双龙开投集团旗下企业,曾在本次挂牌地块周边拿过几宗地。
按照此前周边地块出让的情况,相对较高的地价,以及不算好的区位,个人估计接下来能拿下这两宗地的,仍然会是双龙开投集团。
花果园贵阳国际大道项目拟引资百亿元
10月17日,贵阳国际大道招商项目被纳入贵州省投促局招商项目库,开始公开招商。
据悉,该项目总建面93万方,规划建设13栋中西古典建筑集群;
拟打造成为“世界商贸文化之窗,产商文旅交融之地”的生态集群、黔粹产业发展中心、元宇宙数字中心、世界名酒文化体验中心、全球跨境电商集群、商会(集团)总部基地;
项目与双子塔一线相连,集聚文旅、商务、时尚、休闲、跨界五大主题驱动,将古典建筑美学同现代商业融合于贵阳国际大道,打造集多元化业态与建筑景观文化时尚休闲街区,致力于造就贵州首个城市中心文旅商综合体。
项目物业建设完成需110亿元,其中超高层写字楼两栋预计100亿元,其余物业预计10亿元,招商引资金额为100亿元,合作方式为重组;
若有合作及投资意向,可与项目物业方沟通合作模式及具体内容,可部分参与、部分建设、部分运营。
新项目动态三则
10月16、17日,据贵州省招投标公共服务平台公告,众恒观山云麓项目、观山湖御景小区项目,正就前期物业服务公开招标;
而凯佳里仁境项目前期物业服务,则由贵州悦苑物业服务有限公司,以7609845.53元的报价成功中标,其中住宅物业费为2.8元/平米/月,商业物业费为5元/平米/月,地下停车场管理费为80元/车/月。
根据这些前期物业服务的招标工作,我们可以判断,这三个项目已临近面世,其中凯佳里仁境项目,应该是三个项目中最先面世的那个。
众恒观山云麓项目,位于观山湖区贵阳北站站前区域,宏运大道与凯里路交叉路口西北侧,临考1号线白鹭湖站;

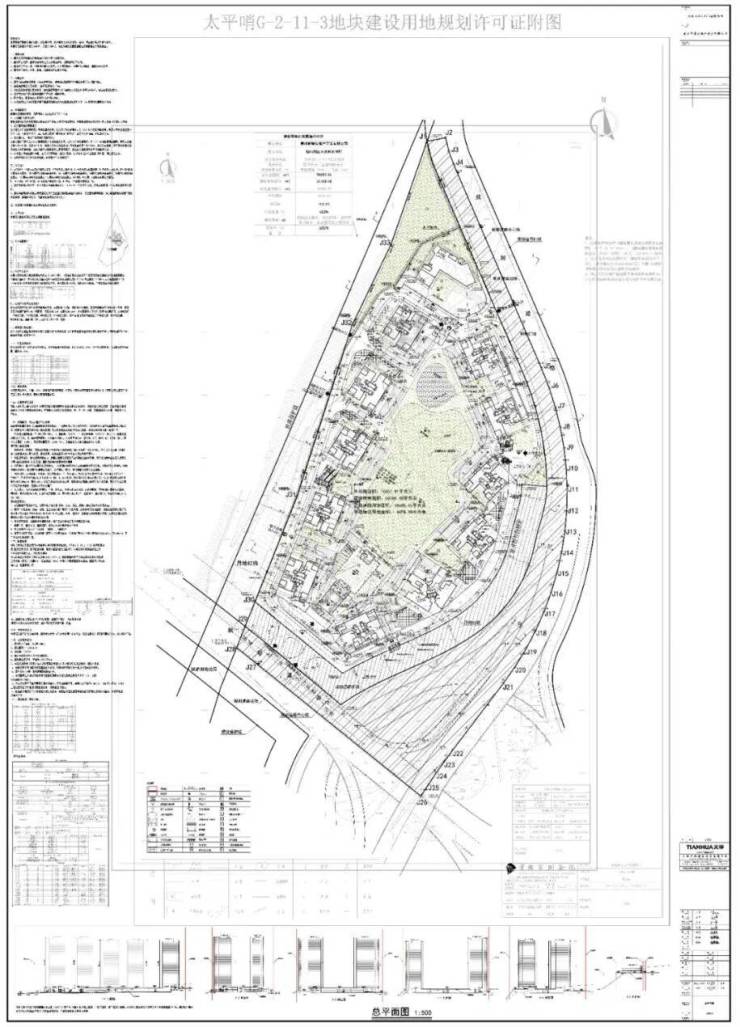
观山湖御景小区项目,即太平哨G-2-11-3项目,位于观山东路北侧、站东路西侧,贵阳北站东侧,今年2月份,该项目签约了金科开发管理发展集团旗下代建品牌“金建管”;
凯佳里仁境项目,位于观山湖区金朱路北侧,诚信南路东侧,所用土地为原恒大新世界项目土地,去年12月份,项目地块被转让至贵阳凯佳房地产开发有限公司。
声明:本文由入驻焦点开放平台的作者撰写,除焦点官方账号外,观点仅代表作者本人,不代表焦点立场。


