观山湖·金茂观棠:以多面宽新规户型,革新贵阳改善人居标准
扫描到手机,新闻随时看
扫一扫,用手机看文章
更加方便分享给朋友
现在的购房者,对居住愈加多元的诉求,让住房产品越来越难做了。
这一点,从开发商在楼盘展示上的“内卷”就能看出来——门头要精致,园林得有格调,连架空层也需精心设计。大家你追我赶,恨不得把品质感、高级感、仪式感……统统叠满,全方位接住购房者对美好生活的期待。
可一转到户型设计上,不少项目却显得有些“乏力”了。尤其是面向大众改善需求的户型,亮点越来越单一,好像除了“高赠送”就没别的了。即便是表现亮眼的户型,卖点仍逃不开方正规整的格局、大客厅、采光好、通透这些老几样。这些固然是好房子的基础,但总觉得少了点让人眼前一亮的“新意”。
直到最近去看了观山湖·金茂观棠的样板间,才真正给了我点惊喜。作为新规落地后推出的新户型,金茂观棠是真把系统性与迭代力的产品理念,实实在在落到了户型里,真切地让人感受到:家不只是用来“住”的,更是用来“生活”的。
属地化打磨,重塑贵阳“好房子”新标尺
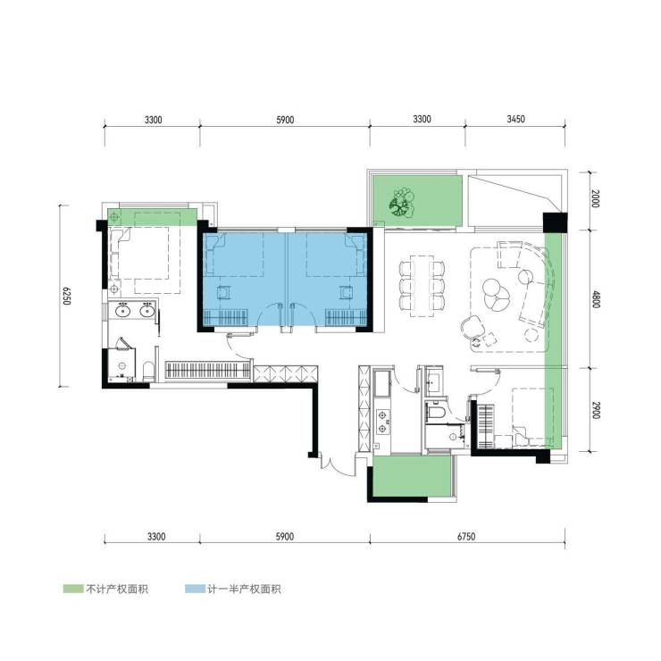
此次金茂观棠推出了两个主力户型:建面约118㎡和138㎡。先说大家关心的“硬指标”,观棠的得房率很能打。建面118㎡的户型能做到实得约152㎡;建面138㎡的户型实得约185㎡,关键这还是平层。同时,传统好户型的“标配”亦未缺席:大客厅、通透采光、动静分区,居住舒适度从基础层面即获保障。
但观棠的惊喜可不止于这些“合格线”,作为中国金茂「堂」棠系产品线的一员,其本就被定位“为顾家派重构家的美与满”,再加上团队根据贵阳属地化的打磨,深度结合贵阳“多云少晴、夏季凉爽但多雨潮湿、冬季温和却湿度较大”的气候特点,对通风、采光、防潮提出了更高标准,创新打造出总长约16-20米的多面宽布局,甚至做到了罕见的五至六面宽。大开间与大采光的组合,让阳光成了“常客”,穿堂风化身“天然空调”,将贵阳多雨、多雾、冬冷的气候特质,巧妙转化为诗意生活的注脚,这才是一个贵阳“好房子”该有的样子。
以118㎡海棠户型为例,其「五面宽设计」配合约16米大面宽、南北通透格局,几乎能让阳光“漫入”每个角落,也让夏日穿堂风裹挟凉意,轻松卷走雨后湿气。尤其LDKB一体化公区的270°环幕视野,阳光与风自由穿行,试想一下,午后邀友小聚,凉风拂过桌布,暖光洒在杯盏,抬眼是贵阳的青山蓝天,仿佛连闲聊都多了几分惬意。
而138㎡盛棠户型更将这样的“阳光仪式感”推向新高度:约20米南向开间,让冬季室内深处亦有明亮温暖,清晨被冬日暖光唤醒,傍晚看夕阳漫过客厅,每一寸空间都成为美好日常的舞台。
更何况,在观棠这样大开间、大采光下的LDKB一体化公区,也展现出大平层级的空间格局,不仅契合贵阳改善家庭结构,更是击中了贵阳人对大客厅的偏好。

就像金茂观棠样板房的客厅:晚饭过后,爸爸来到客厅一旁的阅读区,把灯光调成暖黄模式,继续敲电脑;姐姐弟弟趴在沙发拼乐高争论零件位置;妈妈则在阳台跟着视频运动,汗珠顺着脸颊滴在瑜伽垫上。每个人专注做自己的事,却又能随时抬头看见彼此的笑容。这或许正是家最实在的温暖。而观棠的户型,正是在贵阳的气候里、在每个家庭的生活里,“长”出的温暖港湾。
可变空间:给生活留足“生长接口”
作为系统性与迭代力并存的新规改善产品,金茂观棠的户型亮点可远不止于此。它还有着从可变空间的巧思,到全生命周期的场景适配,为贵阳改善家庭打造会“长大”的家。
观棠的户型设计,从一开始就预留了“弹性”。在客餐厅社交区旁,特别规划可改造区域,精准贴合贵阳家庭动态变化的需求。以138㎡盛棠户型为例,其不仅有约50㎡奢适会客场景,更设置了「兴趣X空间」。这里可以是麻将室、家庭影院、健身区,甚至是收藏品陈列馆,专门为家人的爱好“留足地盘”。
同时,观棠的户型实现了无柱化次卧区,去除冗余结构柱。在138㎡盛棠户型里,约6米大面宽双联空间+南向宽窗可根据需求灵活切换。这里可以是阳光儿童房+亲子区,也可以是坐卧皆向阳的长辈套房。
从二人世界到四口之家,从三代同堂到亲友小聚,观棠的户型用不设限的空间逻辑,让每个家庭都能找到最舒服的“生长形态”。
5大收纳场景预埋 “越住越顺”的生活剧场
当代人对家的期待,早已从“容身”升级为“顺心”,而金茂观棠的全屋定制超级收纳体系正是将空间的用处发挥到极致。棠系·5大收纳场景预埋:从进门到就寝,每一处都有专属收纳方案。
玄关:鞋子、外套各归其位,再也不用面对进门堆成山的混乱;
厨房:切菜、洗菜、炒菜动线流畅,锅碗瓢盆、调料瓶各归其位;
餐边柜:日常想喝茶,饼干罐、茶叶盒伸手即取,连聊天氛围都更热络;
衣橱:男女分区收纳,他的衬衫、她的裙子各归其位,嵌入式梳妆台让晨间化妆不再翻箱倒柜;
卫浴:护肤品、洗漱用品分类归位,机器藏进柜体,浴室从此告别“杂物间”既视感。
可以说,有了这套收纳系统,家不仅不会“越住越小”,还会越住越顺。
最后,买房时,地段与配套是看得见的硬实力,但住得舒服这个软实力,过去常被当作可妥协项——只要地段好、配套全,户型设计一般点也没关系。
但金茂观棠显然不这么想。作为收官之作,它要完成的,是从“住”到“生活”的跨越。多设计一个可变空间,让家庭成长有弹性;多做一组收纳柜,让生活更从容;把窗户再做大点,让阳光多洒进一寸……这些“看不见的细节”,才是对“舒适”最真诚的注解。毕竟,对每个家庭来说,最好的家,从来不是“标准答案”,而是“刚好懂你”的温暖。金茂观棠的户型,大概就是这种“刚好”的模样。
目前,观山湖·金茂观棠项目已取证,荣耀加推。如果有感兴趣的朋友,不妨亲临项目的美学样板间,亲自感受建面约118-138㎡的多面宽新规户型——看看这个把“舒适”刻进细节的家,是否能装下你理想中的生活模样。
声明:本文由入驻焦点开放平台的作者撰写,除焦点官方账号外,观点仅代表作者本人,不代表焦点立场。


