文旅康养项目冲上周榜榜首;金华园旁新宅地控规公示(贵阳楼市周报9.9-9.14)
扫描到手机,新闻随时看
扫一扫,用手机看文章
更加方便分享给朋友
来源:樾筑
贵阳楼市周成交榜
事实证明,文旅康养的概念,在贵阳还是能做的。

据贵州省房协统计数据,2024年9月6日至9月12日,贵阳主城六区住宅网签金额榜单中:
主打文旅康养概念的中铁青岩健康小镇成为销冠。
把价格打到6字头的首开紫郡,凭借着性价比力压龙洞堡“当红炸子鸡”天瀑学府,拿下榜单第二。
而被首开紫郡力压的天瀑学府,则位列第三。
其后分别是中铁阅山湖、洋浦觀山玉、前一周销冠湖山郡、景融云湖里、众恒观山云墅、保利公园、铁建城等项目。
上周贵阳整体楼市数据显示,各大项目的以价换量策略颇有成效,住宅销量走势稳中有升。
虽然整体数据稳中有升,但贵阳主城六区的住宅销售周榜,却有着不小的变化。
其中最明显的,当属中铁青岩健康小镇拿下周销冠这件事。
有一说一,这里面可能会存在一些延迟备案、集中备案的情况,但无论是何种情况,中铁青岩健康小镇是实打实地卖出去了一波房。
这说明,只要打造方向正确,营销策略正确,节点把握正确,那么文旅康养的概念,至少在贵阳,并不会是镜中花、水中月。
我之前也到项目上去看过,虽然康养年费确实高昂,但概念本身还是能吸引人的。
并且,项目内的康养、文旅类配套,总体打造水平还是在及格线以上的。
除中铁青岩健康小镇外,众恒观山云墅项目的持续上榜,也值得关注。
这个项目的出现,实际上昭示着一个现实,即贵阳没有卖出去的项目,只有卖不出去的价格,和卖不出去的产品。
想要把房卖出去,产品和价格必占其一,而二者兼顾,才是能够走量的真谛。
如果产品已经实在没辙了,那么价格上,就得做出妥协。
最后,我刚刚给发过广告的乾麟龙壹号院入榜,同样也有点意思。
仔细看榜单数据的话,会发现乾麟龙壹号院上周仅售了4套房,就拿到了1000多万元的业绩,从而进入了榜单。
这代表着,乾麟龙壹号院在上周,又卖了4套别墅。
不愧是今年贵阳的别墅销冠。
这同时也说明,贵阳人依然还是有别墅梦的,只不过现在的梦比以前更为清醒了,更愿意去更为成熟的区域圆梦了。
当然了,哪怕是圆个别墅梦,性价比这方面,依然是有讲究的……
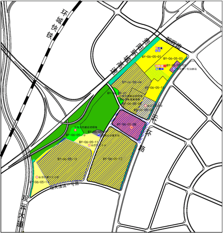
1.白云区环高旁新宅地控规出炉
9月10日,贵阳市自然资源和规划局公示了白云组团南湖单元BY-06-05地块控规调整方案。

调规后,BY-06-05地块内尚有三宗待出让宅地,分别为BY-06-05-01、BY-06-05-03,以及BY-06-05-15。
其中,BY-06-05-01地块用地面积3.75万方,容积率3.1,建筑密度26%,绿地率35%,兼容10%非住宅建筑。
BY-06-05-03和BY-06-05-15地块,用地面积分别为4.8万方和2.1万方,规划条件均为容积率2.9,建筑密度26%,绿地率35%,兼容10%非住宅建筑。
另外,BY-06-05-03地块还要求配建一所12班幼儿园。
以上三宗地块的区位条件,大体可以参考北尚华城、恒大城等项目,周边配套资源齐全,生活氛围浓厚。
但由于地块部分区域靠近环高,因此后续也会面临一些噪音等不利因素。
去年12月份,贵阳祥芸置业有限公司曾以2300元/平米楼面价,获取了三宗地旁的G〔23〕091号地块。
该地块现被打造为北尚祥云项目。
不知道本次披露控规的三宗地,又是否会由同一开发商拿下。
2.中铁置业与雅园集团签约,有望共同开发运营商业项目
据中铁置业西南区域官微公开信息,9月10日,中铁置业贵州公司与贵州雅园饮食集团签订战略合作协议。
双方将全面展开商业领域合作,共同探索地产商业与美食文化的创新结合。
签约仪式上,雅园集团方面表示,争取尽快与中铁置业集团贵州公司达成项目合作,共同开发和运营一系列具有创新性的商业项目。
中铁置业方面则表示,双方接下来应在重点产业领域合作展开研究探讨,整合一流资源,研究切实可行的商务合作模式,开展高品质的项目合作。
雅园集团这几年比较出圈,其策划打造的青云市集、青云路步行街、花溪十字街等,都获得了比较好的商业表现成绩。
而从中铁置业的官方措辞来看,签约双方应该已经有意向合作项目了。
至于会率先打造哪个项目,当前尚未可知。
据了解,中铁置业在贵阳市打造的阅山湖、阅花溪等项目,都有较大规模的底商街区可供打造。
3.金华园附近新宅地控规曝光
9月13日,贵阳市自然资源和规划局公示了观山组团金华园单元GS-07-03(3)-01地块控规方案,观山湖区再有新宅地出炉。

据悉,GS-07-03(3)-01地块为商品房用地,用地面积8.5万方,容积率3.5,建筑密度24%,绿地率35%,兼容3%商业建筑,且需配建一条东西向支路。
该地块紧邻黑土坝安置房项目,区位条件尚可,但周边城市界面不佳,总体可以看做是云锦天彰项目的弱化版,不过云锦天彰属于白云区,而该地块项目大概率还是会落观山湖区的户,因此价值上应该也差不多。
除城市界面不佳,需要时间改善外,地块还无法享受轨交福利,但考虑到其周边配套成熟,因此地块项目应该还是能具备一些吸引力的。
另外从规划指标来看,地块3.5的容积率,以及24%的建筑密度,仍是偏高,后续真要投资做成商品房的话,还需要拿地企业费一番脑筋。
声明:本文由入驻焦点开放平台的作者撰写,除焦点官方账号外,观点仅代表作者本人,不代表焦点立场。


