官方无偿回收7宗吾乡项目用地,众恒今年第三次拿下观山东土地,龙湖三马新项目产品信息曝光(贵阳楼市周报7.7-7.11)
扫描到手机,新闻随时看
扫一扫,用手机看文章
更加方便分享给朋友
01
贵阳楼市周成交榜
据贵州省房协统计数据,2025年7月4日至2025年7月10日,贵阳主城六区住宅网签金额榜单中:

天瀑南明府成为周销冠;首钢贵州之光排名第二;中铁阅山湖位居第三。
其后分别是万科未来溪地、铁建城、美的璟悦风华、建发金融北城、中铁阅花溪、云岩吾悦广场和乾麟龙壹号院等项目。
上周贵阳主城住宅销量再次回调,在7月份的第二周表现不佳,整体走势较6月份无明显变化。
从入榜项目来看,目前的问题主要还是出在市场支柱观山湖区。
从6月份起,观山湖区的楼市出现了明显波动,至于原因,个人分析大概有两个。
一是此前便提到过的,市场在刺激政策停滞、住宅价格探底之后,观望情绪较重;
二是观山湖区本身出现了“供应缺口”。
倒不是说观山湖区就没货卖了,而是之前的爆款都进入清盘状态了,老项目又因产品代差等难以为继;
而新项目们也还在蓄势,较早开盘的东都预计都需要等到8月份了。
总之,造成观山湖区楼市当前局面的原因有很多,叠加本身较重的观望情绪,自然会出现一些波动。
预计随着新项目、新产品的面世,观山湖区楼市又会恢复到断档领先的状态。
接下来还是继续按照惯例,聊聊周榜里那些值得关注的项目。
天瀑南明府,这个项目一直在印证我对龙洞堡市场的“增量说”;
然而由于这个地缘市场确实难做,且难有更好的土地供应,因此短期内,应该还是难以出现新的挑战者。
说起来,正威项目已经筹备多时了,估计很快也要面世销售了吧。
万科未来溪地,已经连续几周上榜了,真是把花溪市场搅了个天翻地覆。
而这个项目的入榜,也向市场说明了地缘核心板块的潜力,尤其是一些难有选择的区域。
乾麟龙壹号院,这个项目其实有很多不错的特质,小高层也好别墅也罢,产品都有一定的差异化竞争力。
可惜的是,区位条件并不足以支持其与天瀑竞争,不然以这个项目的规划和产品力,本应更能频繁入榜才对。
2
盼盼金檀郡配套小学推进建设前期工作
近日,据贵阳市自然资源和规划局公示信息,君安北站中小学项目,即盼盼金檀郡配套小学项目,已获取用地预审与选址意见书。
据悉,该小学项目位于西二环北段和阳关大道交叉处西北侧,用地面积36595.53平米。
据盼盼金檀郡官微公开信息,去年8月14日,项目正式签约观山湖中小学。
而根据拿地要求,项目需配建一所24班小学以及12班初中。
03
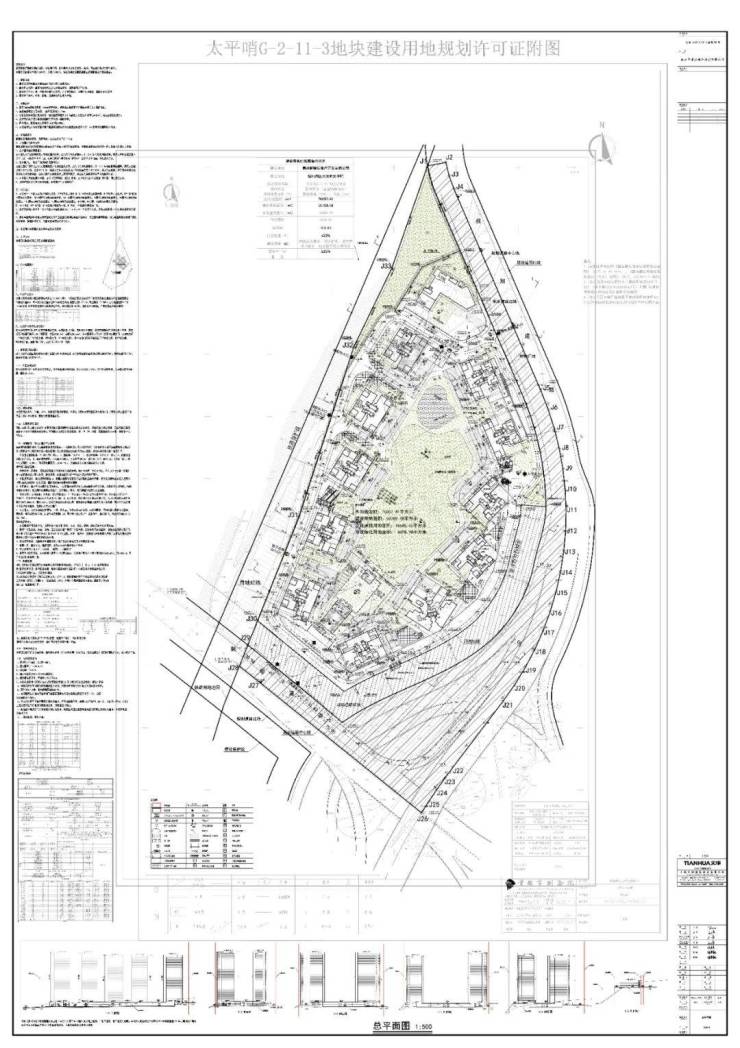
观山东再添新项目,新恒基终有新动态
7月7日,贵阳市自然资源和规划局公示了太平哨G-2-11-3项目规划,观山东再添新住宅项目。
据悉,太平哨G-2-11-3项目位于观山东路北侧、站东路西侧,住宅建面约12.65万方,回迁安置房建面约1.94万方,规划住宅楼栋11栋,总户数1438户,总停车位1250个。
根据项目规划平面图,11栋住宅楼中,除1栋安置回迁房楼栋外,其余商品住宅楼栋均为T4布局,经粗略计算,预计商品住宅建面应在90-130平米左右。
考虑到项目位于贵阳北站东侧,区位条件不佳,临靠铁路且规划有回迁安置房,因此个人猜测项目商品住宅售价不会很贵。
具体可以参考项目西侧铁路线对面的观山开磷城。
而比项目本身更值得关注的是,项目开发企业为贵州御景房地产开发有限公司。
该公司有着“新恒基背景”。
据企查查显示,该公司由贵州新恒基龙炎文化旅游投资有限公司控股,而后者则与公开报道中的“香港新恒基集团旗下的专业房地产开发企业”——贵州新恒基文化旅游置业有限公司,高度关联。
我们都知道,去年底以来,北站前原新恒基地块动态频频,不仅有一宗宅地流挂,还有一宗商业地于近期挂牌。
不知道这次有着新恒基背景的这个新项目此时公示规划,是否也意味着原新恒基地块会迎来更多新动态。
另外还值得关注的是,本次规划公示的这个新项目,实际上早在今年2月份,便已签约了金科开发管理发展集团旗下代建品牌“金建管”。
据金建管官微公开信息,2月20日,“金建管”与贵州御景置业有限公司在贵阳成功举行贵阳观山湖项目代建签约仪式。
双方将围绕贵阳核心区域的高品质住宅开发展开深度合作。
金建管将全程负责项目的产品定位、设计优化、施工管理及品质交付,并引入其在重庆、西安等地已成功应用的“精细化管控体系”。
金科集团大家应该都比较熟,房地产业如日中天的时节里,也曾在贵阳市场试图深耕过。
本次通过代建业务重返贵阳市场,也不知道会不会带来什么惊喜。
文章最后,再跟大家粗略聊一聊新恒基的入黔过程。
新恒基入筑,大体上可以追溯至2012年。
当时,香港新恒基国际称,拟投资60亿元在北站前广场西南侧开发500亩的新恒基商业新城。
2017年1月,贵州新恒基御景置业有限公司与观山湖区政府平台公司共同出资设立贵州新恒基文化旅游置业有限公司,共同开发北站站前地块。
至于此后,就是漫长的“长草期”了,即便有些新恒基的新消息,也不过都是“上围挡”等小打小闹。
另外,还有个有趣的旧闻在此跟大家分享。
当时,与新恒基一块儿意向投资北站功能区开发建设的企业,还包括万科和保利。
04
总面积超15万方!官方无偿回收7宗吾乡项目用地
7月8日,贵阳市自然资源和规划局发布收回国有建设用地使用权决定书,决定无偿回收7宗吾乡项目用地。
根据决定书,贵阳乌当中天吾乡房地产开发有限公司于2019年11月取得的乌当区新天社区奶牛场G(19)079号(二期)-G(19)085号(二期)7宗地未动工开发已满两年;
现根据相关规定,经贵阳市人民政府批准,决定无偿收回乌当区新天社区奶牛场G(19)079号地块(二期)-G(19)085号地块(二期)7宗地块(合计156666.71平米)国有建设用地使用权。
自收到本决定起,贵阳乌当中天吾乡房地产开发有限公司不得再对该7宗地进行开发、租赁等活动。
根据公开信息,2019年11月18日,贵阳乌当中天吾乡房地产开发有限公司以约15.1亿元总价,竞得了乌当区新天社区奶牛场的G(19)079-085号共七宗商住、住宅用地,总出让面积约35.64万方。
延伸阅读:
G(19)079-085号地块挂牌信息
G(19)079号地块实际出让面积30055平方米,计容建面39071.5平方米,规划用途为居住95%、商业5%,容积率>1.0、≤1.3,建筑密度≤32%,绿地率≥30%,建筑限高27米。
G(19)080号地块实际出让面积39611平方米,计容建面55455.4平方米,规划用途为居住95%、商业5%,容积率>1.0、≤1.4,建筑密度≤32%,绿地率≥30%,建筑限高27米。
G(19)081号地块实际出让面积44669平方米,计容建面49135.9平方米,规划用途为居住95%、商业5%,容积率>1.0、≤1.1,建筑密度≤43%,绿地率≥25%,建筑限高18米。
G(19)082号地块实际出让面积78344平方米,计容建面86178.4平方米,规划用途为居住95%、商业5%,容积率>1.0、≤1.1,建筑密度≤43%,绿地率≥25%,建筑限高18米。
G(19)083号地块实际出让面积43554平米,计容建面52264.8平米,规划用途为居住95%、商业5%,容积率>1.0、≤1.2,建筑密度≤43%,绿地率≥25%,建筑限高18米。
G(19)084号地块实际出让面积44402平米,计容建面66603平米,规划用途为居住95%、商业5%,容积率>1.0、≤1.5,建筑密度≤32%,绿地率≥30%,建筑限高27米。
G(19)085号地块实际出让面积75764平米,计容建面90916.8平米,规划用途为居住100%,容积率>1.0、≤1.2,建筑密度≤43%,绿地率≥25%,建筑限高18米。
05
金阳环线或将迎来新进展
7月9日,贵阳市公共资源交易中心发布公告,拟启动贵阳市三桥马王庙片区金阳环线道路建设高边坡支护工程施工招标程序。
据悉,该工程项目投资估算143130.6万元,招标人为中铁城建集团有限公司,招标文件计划发布时间为8月9日。
我之所以关注这个招标项目,主要是因为一般在道路建设中,边坡支护算是正式建设的前期工作之一。
推进边坡支护工程建设,便有望推进道路开挖等主要工程。
不知道这次边坡支护工程施工招标,是否意味着从海伦堡项目到百花大道那段待建路段,有开工建设的可能。
06
深耕观山东!众恒今年第三次拿下观山东优质宅地
7月11日,据贵阳市公共资源交易中心公开信息,以及相关业内信息,四川众恒置地以约3.49亿元总价、3000元/平米楼面价,获取了观山东片区的52011520250011号商住用地。
这是继4月份两次出手拿地后,众恒在今年第三次获取观山东土地。
据悉,52011520250011号地块位于观山湖区贵遵路东侧、阳关大道北侧,实际出让面积58135.23平米;
地块规划指标为容积率大于等于1.0小于等于2.0,建筑密度小于等于30%,绿化率大于等于30%。
拿地条件方面,众恒需在签订土地出让合同后,与观山湖区政府同步签订《观储-2025GS-03地块公建配套设施同步规划、同步建设、同步交付监管协议》;
关于教育配套问题,需满足以下条件:
在观储-2025GS-03地块内配建不低于6班幼儿园,建成后无偿移交;
取得控规编号为GS-09-01-16地块(地块位于观山小区西南侧,华东师范大学附属贵阳学校东侧),并在地块中按照相关规划指标建设一所15班初中和30班小学,用以抵扣出让地块相应学位,剩余超配部分由观山湖区政府回购;
高中部分按照以资代建有关规定执行;
出让地块义务教育新生由观山湖区按就近入学相关原则统筹安排。
此外,众恒还需配建观储-2025GS-03东侧规划道路(长约292米,宽约20米),以及北侧规划道路(长约216米,宽约20米),与出让地块项目同步开工、同步建设,同步交付使用。
区位条件方面,地块位于观山东核心,毗邻远洋红星观山天铂项目,在路网完善后与1号线新寨站、白鹭湖站步行距离均在800米内,有地铁盘概念;
地块周边3公里范围内,配套资源一应俱全,商业、学校、公园都有,周边生活便利性也比较好。
而在当前规划指标下,众恒可以打造洋房+小高层纯改善社区,具备不错的产品溢价潜力。
目前,众恒在观山东片区已先后获取四宗地,将陆续打造三个新项目,对观山东城市发展具有积极意义。
之于众恒为什么会如此频繁出手拿地,个人分析大概有以下两个原因:
第一,众恒观山云墅一年清盘的成功,给予了众恒继续拿地的信心。
第二,当前贵阳土地价格处于低位,具备逆周期拿地的性价比。
另外,众恒如此频繁拿地,其实也是深耕贵阳过程中,品牌建设的环节之一。
不仅可以彰显品牌实力,强调企业的资金厚度,同时也能夯实市场信心。
最后,回顾一下今年4月份众恒两次出手拿地的情况。
4月14日,众恒以3000元/平米楼面价,获取了位于观山东片区白鹭湖地铁站旁的52011520250002号地块。
4月23日,众恒再以3200元/平米楼面价,获取了位于观山湖区小龙滩片区林城东路北侧的52011520250003号地块。
07
龙湖三马新项目产品信息曝光
近日,龙湖三马新项目更多相关细节及产品信息曝光,项目面世销售的时间也越来越近了。
据悉,龙湖三马新项目案名定为“观萃”。
大家看到这个案名,可能会觉得是不是三马项目又想蹭观山湖区。
这里需要解释一下,其实不是的。
与舜山府一样,观萃是龙湖的一个高端系列产品线,在长沙、成都、上海、北京等地都有落地过。
当然了,虽然案名一样,但大家不能用其他城市的经验,来套贵阳这个项目。
至于产品方面,龙湖观萃本次推售四个户型,建面分别为90、110、120和135平米。
四个户型走的都是高赠送的路子,哪怕是最小的90户型,都做了6米横厅。
从这一点来看,龙湖应该还是希望这个项目能够走量,因此最终售价应该也不会很贵。
除了案名和产品户型信息曝光外,项目还有大门及立面效果图也同时曝光了出来。


从效果图来看,龙湖观萃的颜值应该还是在线的,这里也期待一下项目的实景展示。
声明:本文由入驻焦点开放平台的作者撰写,除焦点官方账号外,观点仅代表作者本人,不代表焦点立场。


